CEP ARA

Çift Sıra Kanatlı Dağıtıcı Menfezler

Çift Sıra Kanatlı Dağıtıcı Menfezler
 
 

Çift Sıra Kanatlı Dağıtıcı Menfezler
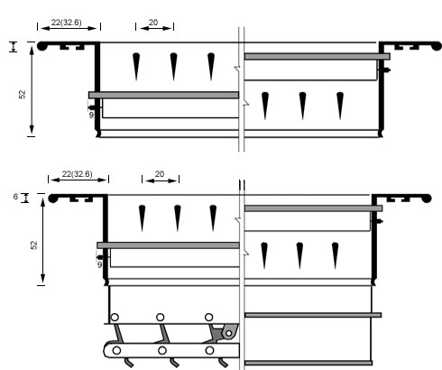
Hava kanallarının üfleme noktaların da kullanılır. Geniş ve dar kasalı olarak özel biçimlendirilmiş aliminyum profilden üretilir. Damper takılabilir kanatları yatay eksende sabit ve ya hareketli olabilir. Vidalı ve sustalı olarak monte edilen menfezler; tercihe göre eloksal, analog ve eloktrostatik fırın boyalı olarak imal edilir.

Standart Ölçüler
L 200 200 250 250 300
H 100 150 100 150 150
 
Standart Ölçüler
L 300 500 600 750 1000
H 200 250 250 350

500